An
2009-2014
Status
Finalizat
Program
Locuinţă de vacantă
Credite
Irina Wrenn, Raluca Vişinescu, Ing. Cristian Botoi (structură), Ing. Florin Iordache (instalaţii), fotografii: Răzvan Manea
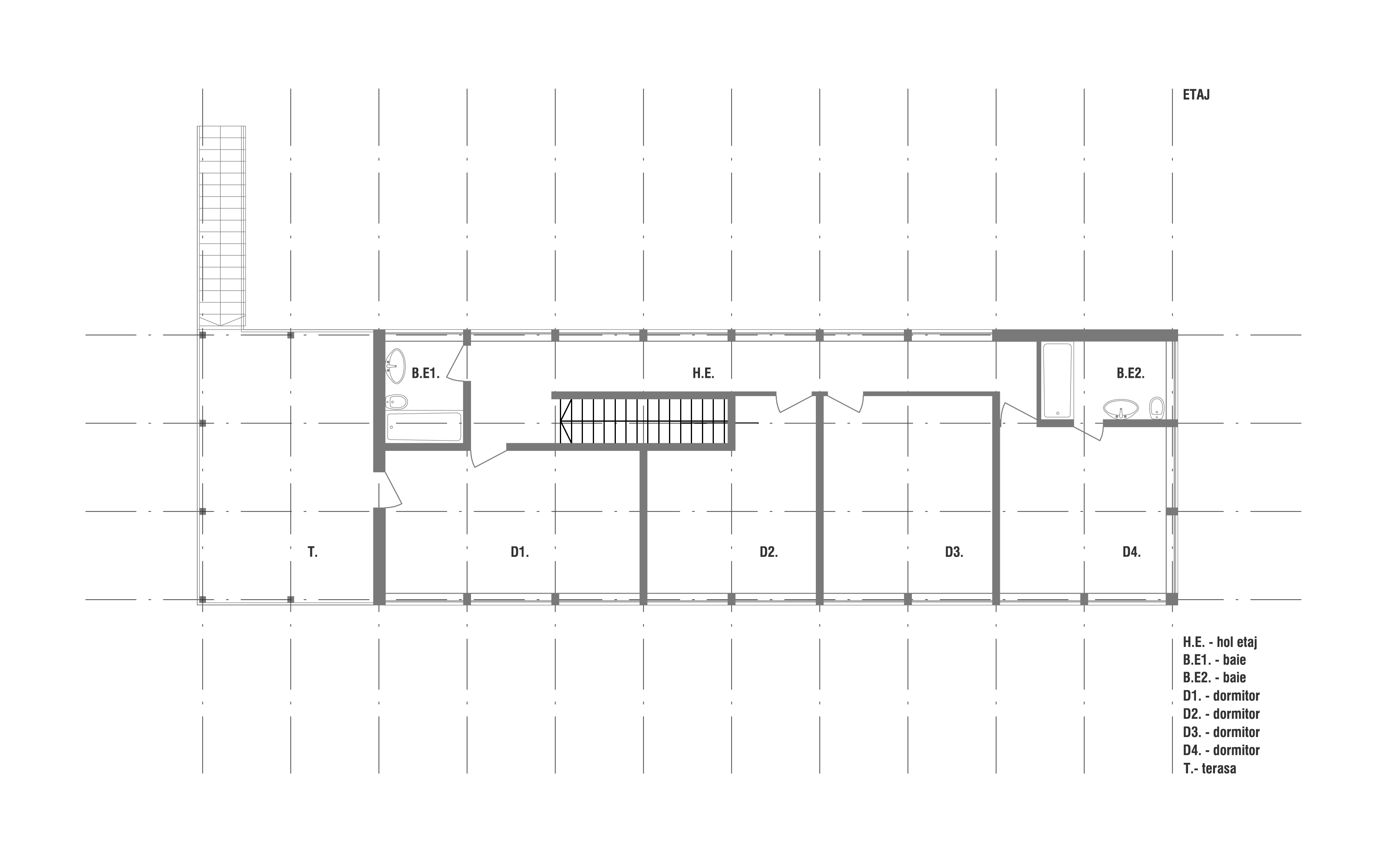
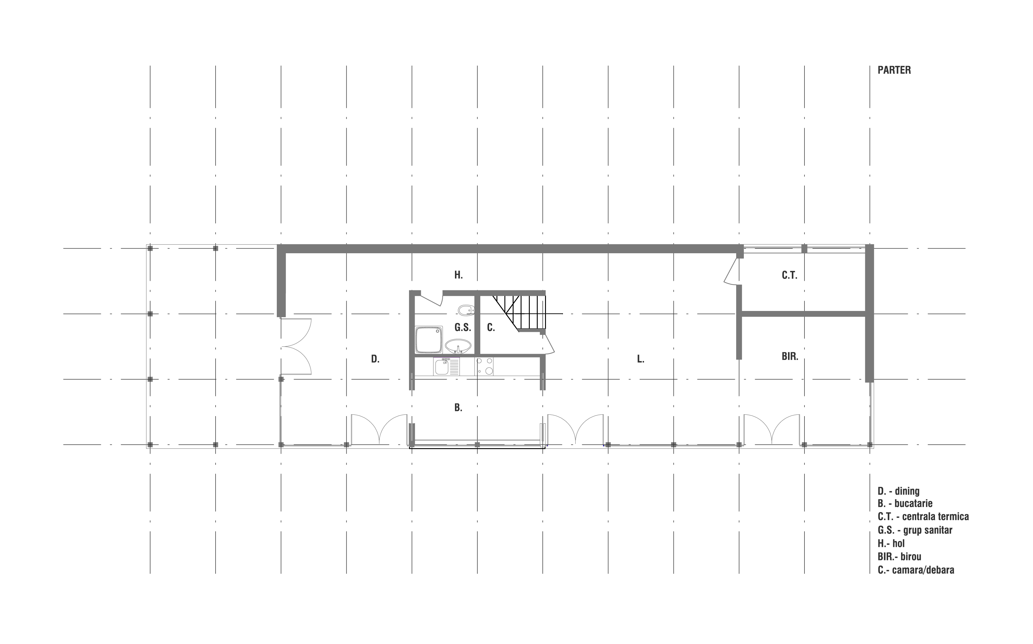
Măgura e un sat situat între Munţii Piatra Craiului şi Munţii Bucegi, inclus în Parcul Natural Piatra Craiului. Beneficiind atât de un peisaj exceptional cât şi de un context construit puternic, soluţia casei   s-a subordonat celor două: un răspuns minimal urmând geometria şi materialele construcţiilor locale şi deschiderea catre peisaj.

https://www.anuala.ro/proiecte/2018/